Mungkin anda sedang mencari desain rumah yang terletak di hook/sudut jalan? Atau anda sedang mencari desain fasad rumah minimalis? Kebetulan sekali, berikut kami berikan contoh gambar kerja rumah minimalis 2 lantai arsitektural dan utilias yang bangunannya terletak di sudut jalan/hook, sehingga fasad depan bisa dibuat 2 sisi. Semoga bisa bermanfaat bagi anda…
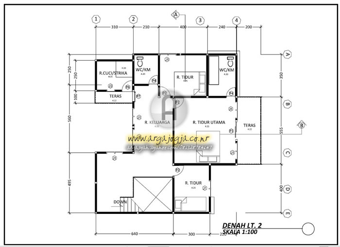
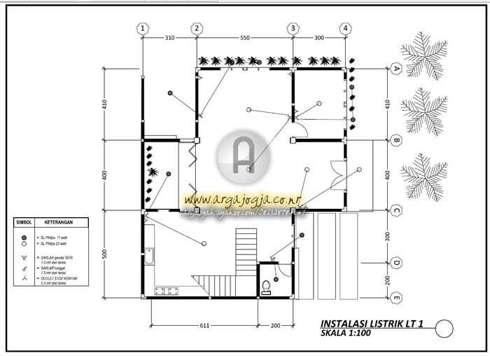
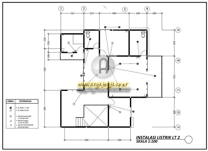
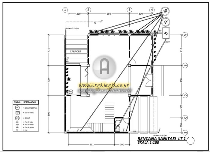
Gambar kerja untuk arsitektural meliputi gambar denah situasi/siteplan, gambar denah ruangan+layout furniture, tampak depan, samping, atas, belakang, potongan memanjang, potongan melintang dan ukuran pintu jendela, sedangkan gambar kerja utilitas meliputi gambar kerja elektrikal (tata letak saklar, lampu dan stopkontak)] dan gambar kerja sanitasi (saluran air bersih dan air kotor).
Ingin di desainkan? hubungi www.argajogja.co.nr















ikut download ya mas arga.. moga selalu sukses aza….
Mas sy download gambarnya.teruma kasih ya.